浙江建工环艺装饰设计工程有限公司

旭格窗系统当前位置:旭格门窗旭格窗系统

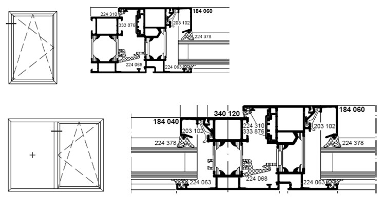
AWS 60窗系统

旭格AWS60内开窗系统

旭格AWS60外开窗系统

通过AWS(铝合金窗系统)旭格打造了一套能胜任所有要求的窗系统。功能优势与建筑设计特点相辅相成。良好的隔热性能、降低的结构厚度、纤细的可视面宽度等诸多优势相结合。

特征和优势

宽阔的隔热带保障良好的隔热性能,也提供高隔热系统

基本结构深度60 mm,Uf值2.6 W/m²K (AWS 60)和2.0 W/m²K (AWS60.HI,可视面宽度117 mm);

开启扇玻璃厚度选择在11MM到50MM之间,固定部分可以做到4MM到40MM

可视面宽度自51 mm起的纤细窗系列

隐藏式旭格五金件AvanTec为重达160 kg的内开系统而设

外开系统多样化的解决方案,包含防盗等级可达WK2(RC2)的标准初始解决方案

防盗等级达到WK2根据DIN EN 1627标准

可以做扇框平齐的外开扇;

可以做平开內倾和双扇的easy access阳台、天井门;

与旭格门ADS兼容;

此系统有内开内倾窗、外开窗、外悬窗等系列

·设计系列:

Schüco AWS 60 SL(.HI) (圆弧轮廓)

Schüco AWS 60 RL(.HI) (住宅轮廓)

Schüco AWS 60 BS(隐扇轮廓)

 

 
AWS60节点图